place
Наши филиалы: Пинск

1 комнатная квартира

Продажа Барановичи, Защитная

Продается часть дома в статусе 1-комнатной квартиры с отдельным входом по ул. Защитная (Восточный мкр-н). Дом на 3 квартиры, шлакобетонный, снаружи оштукатурен и окрашен, 1958 года постройки. Крыша - шифер.

В квартире имеются все коммуникации: отопление - газовый котел, вода - центральная (подогрев - газовая колонка), канализация - центральная.

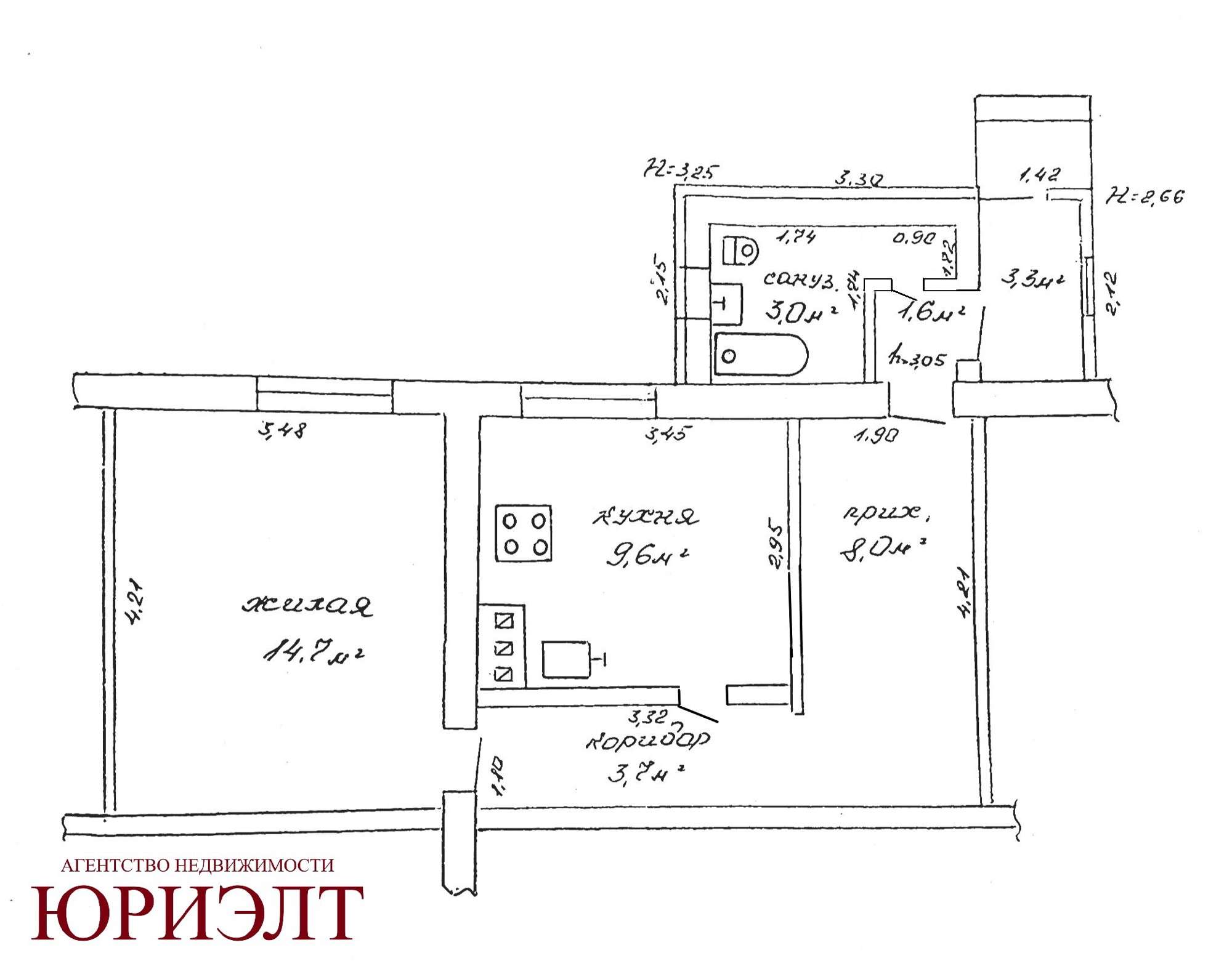
Общая площадь по СНБ - 43,8 м², общая жилая - 40.5 м², жилая - 14.7 м², кухня - 9,6 м², с/у - совмещен.

Квартира в аккуратном жилом состоянии.

* Высота потолков - 3.05 м.

* Окна - ПВХ.

* Входная дверь - металлическая.

* Полы - линолеум.

Участок ~ 2.5 сотки, имеется сарай.

В шаговой доступности: школа № 13, дет. сад, ТЦ "Радужный", магазин "Корона", аптека, недалеко расположен Автовокзал, ЖД вокзал, рынок.

Подробнее уточняйте по телефону, указанному в объявлении.

73 128.81 BYN 24 900.00$ 1 805.64 BYN/м2 614.81$/м2
Предложить свою цену
Заполните телефон!
Введите цену или отметьте галочкой "Консультация по кредиту"
Нажимая "Отправить" я даю согласие на обработку персональных данных
Область
Брестская область
Район области
Барановичский
Микрорайон
Яново
Кол-во комнат квартиры
1
Кол-во раздельных комнат
1
Площадь(О/Ж/К)
40.50/14.70/9.60
Этаж
1/1
Сан. узел (кол-во)
Совмещенный: 1
Высота потолка
3.05
Номер и дата договора
25/11 от 10-03-2026
Посмотреть на карте