place
Наши филиалы: Пинск

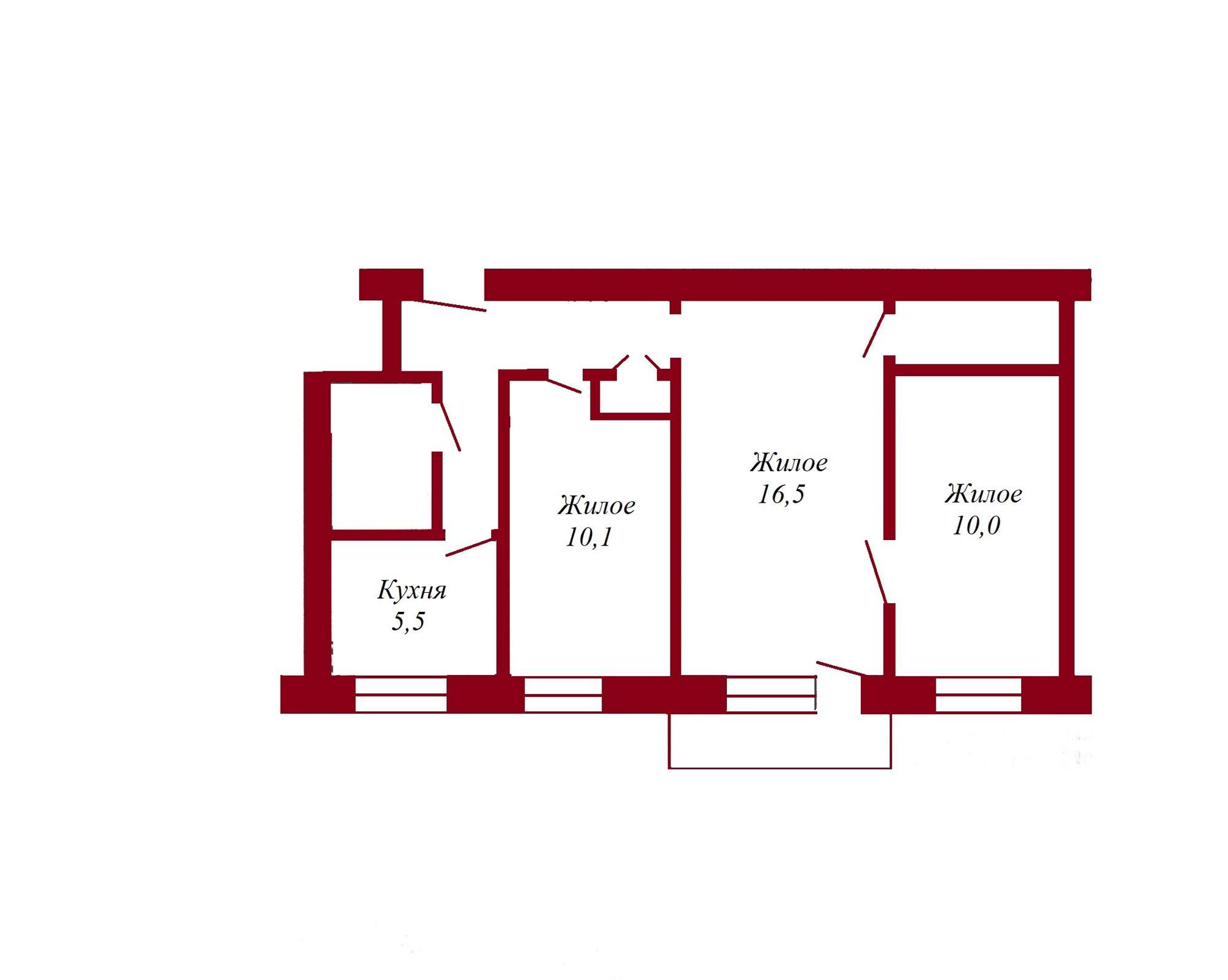
3 комнатная квартира

Продажа Пинск, Зои Космодемьянской, 4

Продается трёхкомнатная квартира по улице З. Космодемьянской, д. 4. Центр города. Располагается на 3 этаже 5-этажного кирпичного дома 1963 года постройки. Общая площадь по СНБ 55,1 м², жилая 36,6 м², кухня 5,5 м². Есть балкон, застеклён. Вместительная кладовка. Входная дверь - металлическая, межкомнатные двери - МДФ, установлены окна ПВХ, пол - линолеум и плита ДСП окрашенная, потолки - натяжные. Очень теплая квартира, есть подвал. Спокойный подъезд, хорошие соседи. Во дворе гараж металлический, который при продаже квартиры будет бонусом. Зеленый двор, развитая инфраструктура, отличная транспортная развязка.

Возможен обмен на однокомнатную квартиру 2-3 этажи или дом с лифтом (не 8 и 9 этажи), в опрятном жилом состоянии, с балконом (желательно). Район улиц Центральная, Первомайская, Телефонная, Парковая.

Звоните, договоримся на показ!

Помощь в продаже Вашей недвижимости!

Договор от 25.11.2025г. № 186/8, ОДО «Юриэлт», УНП 101214439, лицензия № 02240/8 от 17.02.2005 на право осуществления деятельности по оказанию юридических услуг (риэлтерские услуги).

130 306.50 BYN 45 000.00$ 2 364.92 BYN/м2 816.70$/м2
Предложить свою цену
Заполните телефон!
Введите цену или отметьте галочкой "Консультация по кредиту"
Нажимая "Отправить" я даю согласие на обработку персональных данных
Область
Брестская область
Район области
Пинский
Кол-во комнат квартиры
3
Кол-во раздельных комнат
3
Площадь(О/Ж/К)
55.10/36.60/5.50
Этаж
3/5
Год постройки
1963
Материалы дома
Кирпич
Балконы
Балкон: 1
Сан. узел (кол-во)
Совмещенный: 1
Номер и дата договора
186/8 от 25-11-2025
Посмотреть на карте