place
Наши филиалы: Пинск

4 комнатная квартира

Продажа Барановичи, Наконечникова, 17 к.6

В продаже 4 – комнатная квартира с ремонтом в Северном м-не по ул. Наконечникова, д. 17/6, находящаяся в 9-этажном, панельном доме на 5-ом этаже.

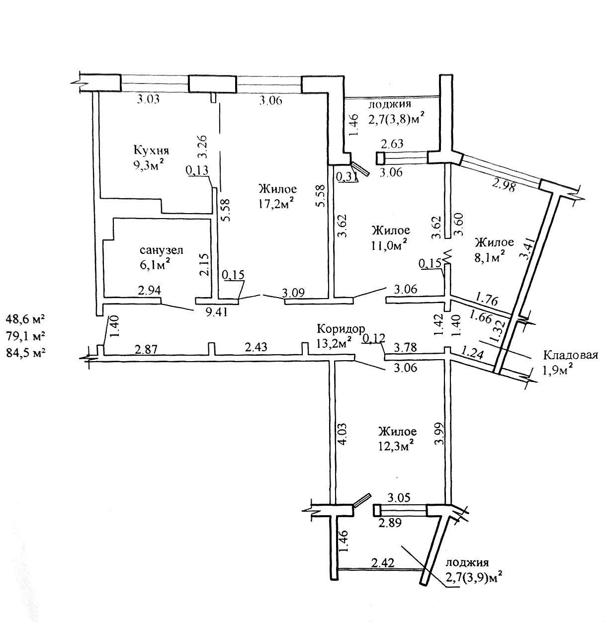
Общая площадь по СНБ – 84,5 м², жилая – 48,6 м², кухня – 9,3 м².

- в квартире выполнена и узаконена новая планировка;

- заменена вся проводка и сантехника;

- стены во всей квартире выровнены и оклеены обоями;

- 2 застекленные лоджии;

- окна – ПВХ;

- потолки все ШПАКЛЕВАННЫЕ;

- полы – ламинат и плитка;

- качественный кухонный гарнитур с техникой и фурнитурой Blum (варочная панель, посудомоечная машина на 12 персон, вытяжка);

- есть вместительная гардеробная в коридоре, с большим количеством мест для хранения;

- санузел совмещенный, душевая кабина с радио, подсветкой, массажем и мн.др., а так же есть гигиенический душ;

- входная дверь – металлическая, с системой из трёх замков;

- ухоженный подъезд;

- большое количество мест для парковки;

- новый лифт.

Район с развитой инфраструктурой и прекрасным транспортным сообщением.

В шаговой доступности есть хозяйственные и продуктовые магазины, детский сад №5,50 и 52, СШ №19 и №18, Светиловское озеро, детская и взрослая поликлиника, стоматология, музыкальная школа, Ледовый дворец, мини-рынок, скверы и мн. др.

168 081.60 BYN 57 000.00$ 2 124.93 BYN/м2 720.61$/м2
Предложить свою цену
Заполните телефон!
Введите цену или отметьте галочкой "Консультация по кредиту"
Нажимая "Отправить" я даю согласие на обработку персональных данных
Область
Брестская область
Район области
Барановичский
Микрорайон
Северный
Кол-во комнат квартиры
4
Кол-во раздельных комнат
4
Площадь(О/Ж/К)
79.10/48.60/9.30
Этаж
5/9
Год постройки
1978
Материалы дома
Панель
Балконы
Лоджия: 1
Лоджия застеклена: 1
Сан. узел (кол-во)
Совмещенный: 1
Номер и дата договора
113/11 от 21-08-2025
Посмотреть на карте