place
Наши филиалы: Пинск

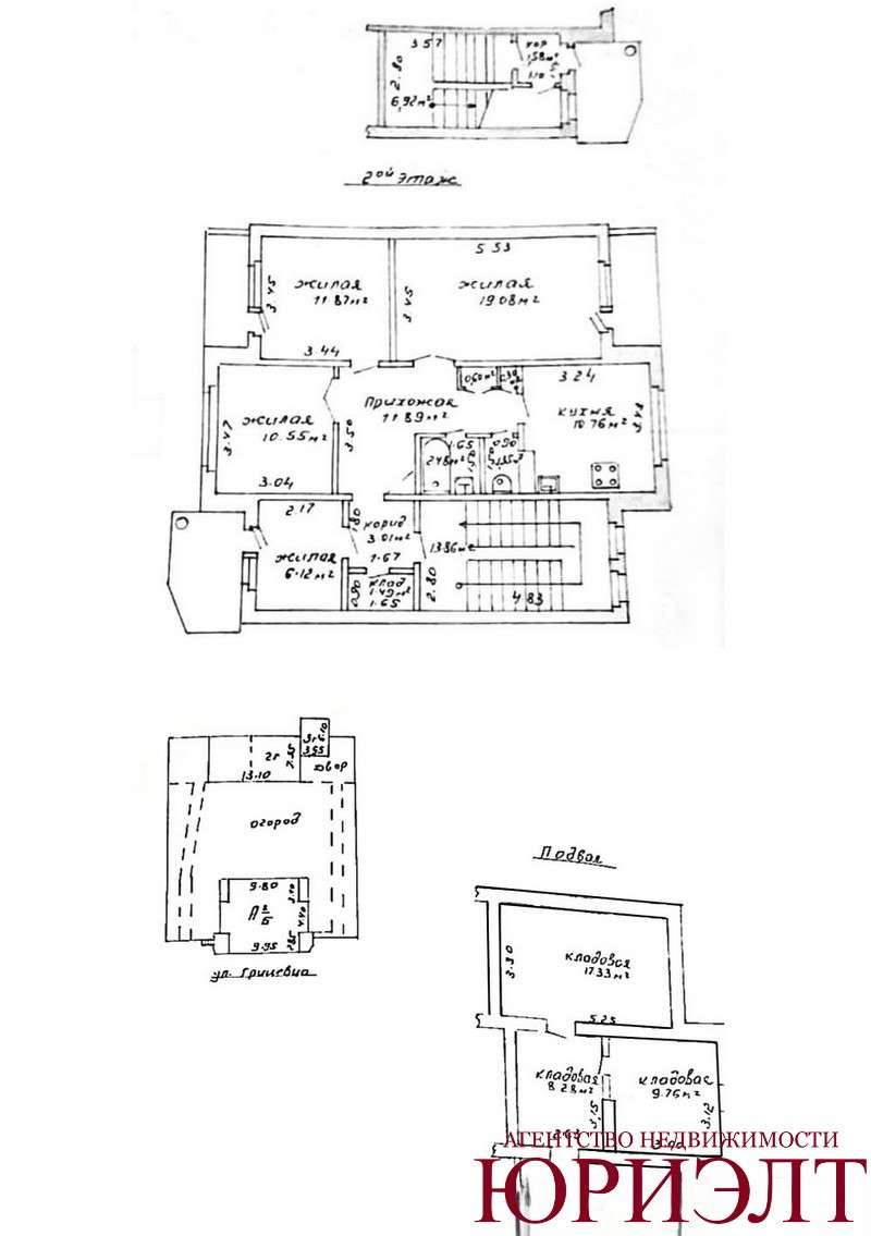
4 комнатная квартира

Продажа Жемчужный, Грицевца

Продается просторная 4 – комнатная квартира в аг. Жемчужный, по ул. Грицевца, находящаяся в 2-этажном панельном доме на 2-ом этаже.

Общая площадь по СНБ – 81.1 м², жилая – 47.6 м², кухня – 10.7 м².

Квартира с отдельным входом.

Все комнаты раздельные.

- стены во всей квартире оклеены обоями;

- окна – стеклопакеты, 3 балкона (не застеклены);

- потолки – натяжные в коридоре и двух жилых комнатах, в одной комнате окрашен, на кухне - сайдинг;

- полы – доска, ламинат, кухня-плитка;

- сан. узел раздельный, ванная уложена плиткой, установлена душевая кабина, в туалете - сайдинг;

- входная металлическая дверь;

- межкомнатные двери – дерево;

- на кухне установлена газовая колонка и котел.

- большой подвал под квартирой.

Водоснабжение и канализация – центральные.

Есть участок 4 сот. с отдельным входом, на котором расположен гараж с погребом, сарай, также на участке растут 2 яблони, груша, черешня (красная и желтая), виноград, крыжовник.

В поселке развита инфраструктура: есть дет. сад, школа, банк, различные магазины, Дом культуры, амбулатория, кафе, баня и мн. другое.

101 059.93 BYN 34 900.00$ 1 246.11 BYN/м2 430.33$/м2
Предложить свою цену
Заполните телефон!
Введите цену или отметьте галочкой "Консультация по кредиту"
Нажимая "Отправить" я даю согласие на обработку персональных данных
Область
Брестская область
Район области
Барановичский
Кол-во комнат квартиры
4
Кол-во раздельных комнат
4
Площадь(О/Ж/К)
81.10/47.60/10.70
Этаж
2/2
Год постройки
1982
Материалы дома
Панель
Балконы
Балкон: 3
Сан. узел (кол-во)
Раздельный: 1
Номер и дата договора
265/11 от 10-12-2024
Посмотреть на карте