place
Наши филиалы: Пинск

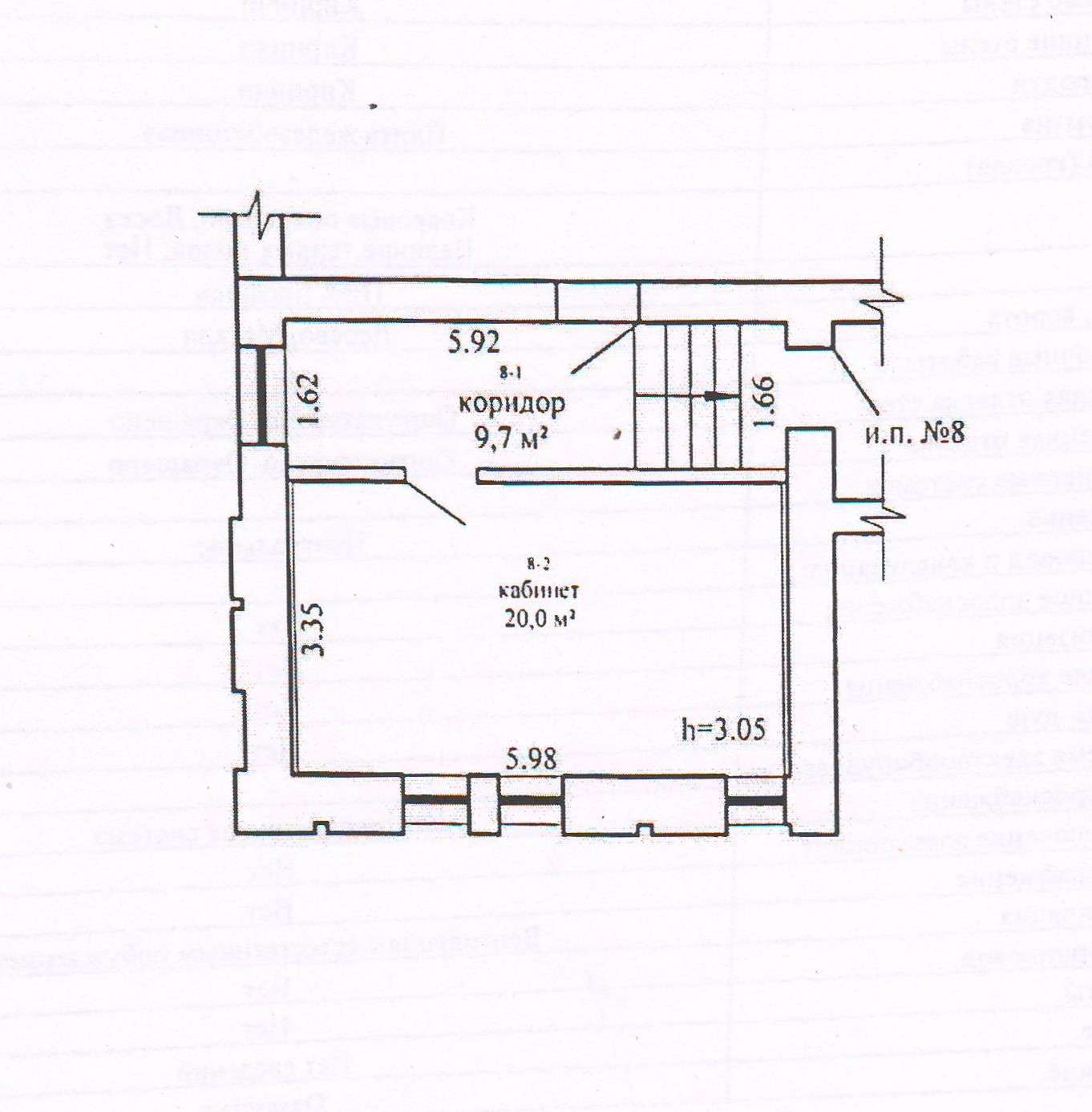
Продаётся изолированное помещение в самом центре города по ул. Заслонова. Располагается на 1 этаже административно-торгового здания 1989 года постройки. Отдельный вход. Общая площадь - 29,7 м². Помещение в хорошем состоянии: пол - ковролин и плитка, потолок - натяжной, стены - оштукатурены и окрашены, окна - ПВХ. Установлен кондиционер. Окна выходят на улицу Заслонова. Подходит под использование как офис, помещение под услуги, торговый объект.

Договор от 19.05.2025г. № 85/8, ОДО «Юриэлт», УНП 101214439, лицензия № 02240/8 от 17.02.2005 на право осуществления деятельности по оказанию юридических услуг (риэлтерские услуги).

104 604.50 BYN 35 000.00$ 3 522.03 BYN/м2 1 178.45$/м2
Предложить свою цену
Заполните телефон!
Введите цену или отметьте галочкой "Консультация по кредиту"
Нажимая "Отправить" я даю согласие на обработку персональных данных
Область
Брестская область
Район области
Пинский
Площадь, м2
29.7
Кол-во помещений
1
Этаж
1/2
Год постройки
1989
Материалы дома
Кирпич
Номер и дата договора
85/8 от 19-05-2025
Посмотреть на карте