place
Наши филиалы: Пинск

Здание

Продажа Пинск, Октября, 3

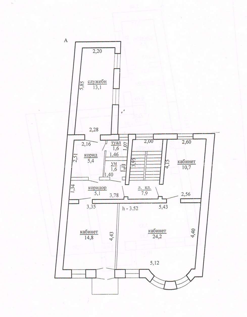
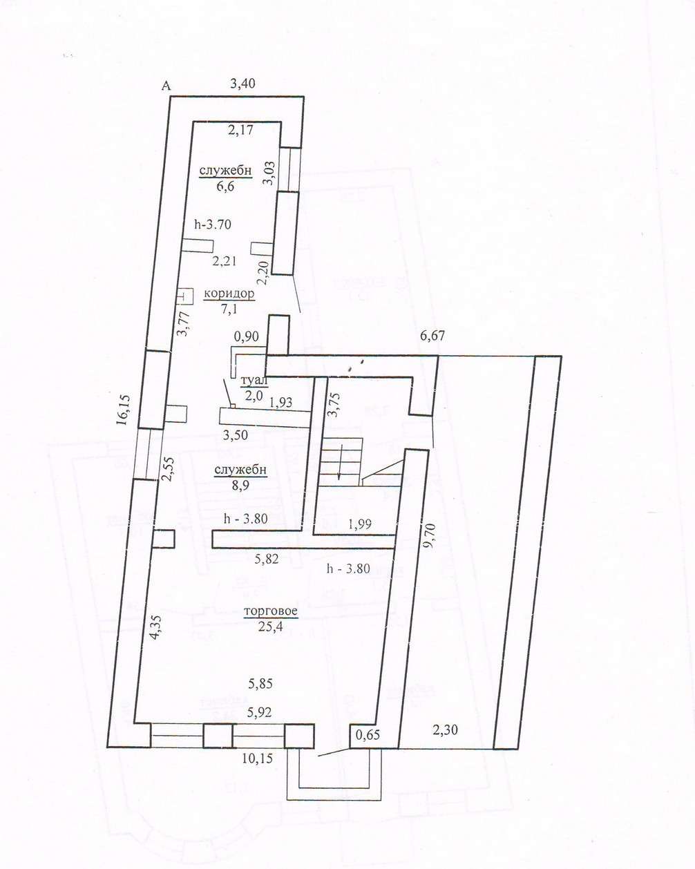
Продается капитальное строение, что представляет собой Здание административно-хозяйственное трехэтажное. Расположенное в городе Пинске по площади Октября, д. 3. Год постройки 1928. Общая площадь здания 215,4 м2. Материал стен - кирпич. Капитальное строение находится на земельном участке площадью 0,0265 га. В помещениях проведен водопровод, электричество, канализация, оптоволокно. Продажа с надежными арендаторами, можно рассматривать, как готовый бизнес! Готовы к Вашим предложениям!

Договор от 30.09.2024г. № 199/8, ОДО «Юриэлт», УНП 101214439, лицензия № 02240/8 от 17.02.2005 на право осуществления деятельности по оказанию юридических услуг (риэлтерские услуги).

448 305.00 BYN 150 000.00$ 2 081.27 BYN/м2 696.38$/м2
Предложить свою цену
Заполните телефон!
Введите цену или отметьте галочкой "Консультация по кредиту"
Нажимая "Отправить" я даю согласие на обработку персональных данных
Область
Брестская область
Район области
Пинский
Площадь, м2
215.4
Кол-во помещений
9
Этаж
3/3
Год постройки
1928
Материалы дома
Кирпич
Участок, с
2.65
Номер и дата договора
199/8 от 30-09-2024
Посмотреть на карте